Appartement - Te koop
€ 190.000
Prins Boudewijnstraat 48 B3C, 1090 Jette
1
66 m²
1
Omschrijving
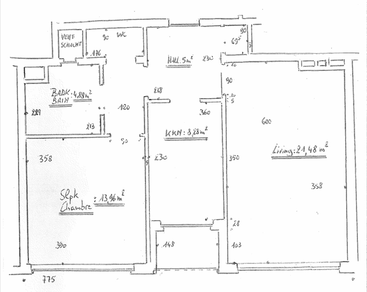
Lichtrijk en centraal gelegen appartement (66 m²) bestaande uit inkomhal, ruime living (21m²) met grote raampartij en mozaiekparket, keuken (8m²) met gasfornuis en aansluitend terras, badkamer (5m²) met ligbad en enkele lavabo, apart toilet, afsluitbare nachthal en slaapkamer (14 m²).
Gelegen op de derde verdieping in gebouw met lift. Privatieve kelderberging op gelijkvloers verdieping.
Fantastische locatie in een rustige straat en toch juist aan het Koningin Astridplein te Jette, nabij winkels, horeca en openbaar vervoer.
Gelegen op de derde verdieping in gebouw met lift. Privatieve kelderberging op gelijkvloers verdieping.
Fantastische locatie in een rustige straat en toch juist aan het Koningin Astridplein te Jette, nabij winkels, horeca en openbaar vervoer.
Delen op
Financieel
- Prijs: € 190.000,00
- Onder BTW stelsel: Nee
- Beschikbaarheid: Vanaf akte
- Kadastraal inkomen: € 773,00
- Geïndexeerd kad. inkomen: € 1.682,00
- Servitude: Nee
Terrein
- Tuin: Nee
- Oriëntatie terras 1: West
Stedenbouw
- Bestemming: Woongebied
- Bouwvergunning: Ja
- Verkavelingsvergunning: Niet meegedeeld
- Voorkooprecht: Nee
- Dagvaarding: Nee
- O-peil: Niet gelegen in een overstromingsgevoelig gebied
- Vonnissen: Nee
- Kadaster sectie: E3
- Kadaster nummer: S2
Ligging
- Buurt: Centraal
- School nabij: Ja
- Winkels nabij: Ja
- Openbaar vervoer nabij: Ja
- Autosnelweg nabij: Ja
- Sportcentrum nabij: Ja
Comfort
- Gemeubeld: Nee
- Lift: Ja
Technieken
- Elektriciteit: Ja
- Telefoonbekabeling: Ja
Energie
-
A< 45B46 - 95C96 - 150D151 - 210Gem.E211 - 275F276 - 345G> 345F
- EPC score: 322 kWh/m²/jaar
- EPC code: 20251125-0000735391-01-2
- EPC klasse: F
- Dubbele beglazing: Ja
- Elektriciteitskeuring: Ja, niet conform
- Verwarming: Collectief
- EPC code: 20251125-0000735391-01-2
Gebouw
- Bewoonbare oppervlakte: 66,00 m²
- Bouwjaar: 1966
- Staat: Goede staat
- Verdiep: 3
- Oriëntatie voorgevel: West
Indeling
- Woonkamer: 21,50 m²
- Keuken: 8,00 m²
- Slaapkamer 1: 13,60 m²
- Badkamer oppervlakte: 5,00 m²
- Badkamer type: Douche in bad
- Douchekamers: 1
- Toiletten: 1
- Terras: 2,00 m²
- Kelder: Ja
Parking
- Parkings binnen: Nee
